Piso en venta en Calle de Colegiata 11

Madrid (Centro)

Ref. 1022 196 m2 4 5 2
venta: 1.590.000 

Excepcional vivienda en planta segunda exterior en Calle Colegiata, Madrid.

En pleno corazón del Madrid histórico, en una de las calles más emblemáticas del barrio de La Latina, se encuentra esta magnífica vivienda exterior que combina la singularidad de un edificio con carácter, la amplitud de sus 196 m² y un confort pensado hasta el último detalle.

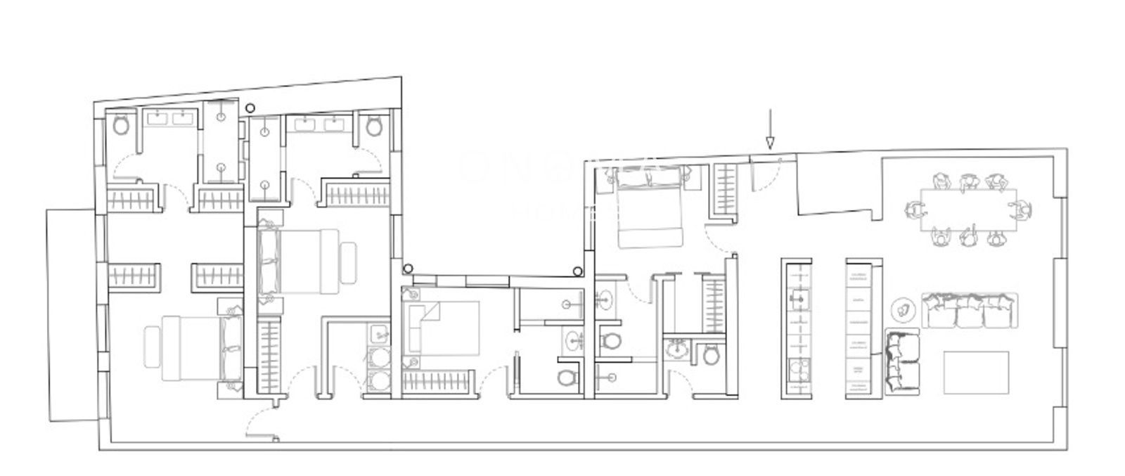
El piso, situado en segunda planta exterior, ofrece una distribución de cuatro habitaciones en suite, diseñada para garantizar la máxima privacidad y funcionalidad en el día a día. Cada dormitorio cuenta con su propio baño completo, convirtiendo esta vivienda en una opción ideal tanto para familias que buscan independencia entre sus miembros como para quienes desean una residencia de nivel donde cada espacio tenga entidad propia.

El amplio salón-comedor es, sin duda, el corazón de la vivienda: un espacio diáfano y luminoso, orientado al exterior, con acceso directo a los dos balcones exteriores que permiten disfrutar del ambiente de la calle. Un ambiente vivo, céntrico y lleno de personalidad que impregna toda la vivienda de luz natural y carácter urbano.

La cocina, totalmente independiente, se presenta como un espacio funcional con capacidad para lavandería integrada, y conecta de forma natural con las zonas de estar. Completa la distribución de baños y aseos un elegante aseo de cortesía para visitas, con acabados de primera calidad en línea con el resto de la vivienda.

Uno de los grandes valores diferenciales de este piso es su terraza privada orientada al patio interior, un espacio tranquilo y resguardado que ofrece ese rincón de calma tan difícil de encontrar en el centro de Madrid; perfecto para el desayuno, la lectura o simplemente desconectar sin salir de casa.

La distribución del piso, tal y como se aprecia en el plano, permite una circulación fluida y bien vertebrada a través de un pasillo distribuidor central, con las cuatro suites perfectamente separadas de las zonas comunes, asegurando privacidad y silencio en los espacios de descanso.

Una oportunidad única para adquirir una vivienda de gran formato, exterior y con múltiples salidas al exterior, en una ubicación privilegiada en el centro histórico de Madrid. No pierda la oportunidad de visitar esta extraordinaria vivienda.

Índice de alquiler

Precio Venta 1.590.000 €
Precio/m² 8.112
Año de construcción 1890
Construidos 196 m2
Útiles 182 m2
Dormitorios 4
Baños 5
Amueblado
Cocina Amueblada
Calefacción Central
Altura/Planta 2
Ascensor
Aire acondicionado
Adaptado
Calificación Energética (E) VER
Luz
Gas
Agua
Conserje
Acceso discapacitados

Inmuebles similares:

 
Piso en venta en Madrid, con 176 m2, 3 habitaciones y 4 baños, Ascensor y Aire acondicionado.
1.675.000 €
 176 m2  3  4
 
Piso en venta en Madrid, con 153 m2, 3 habitaciones y 4 baños, Amueblado y Aire acondicionado.
1.700.000 €
 153 m2  3  4
Contacta con tu asesor
Diana Gomez (Venta)
Solicita información

Si deseas más información sobre esta propiedad, por favor, rellena el formulario: