LUJOSA VIVIENDA EN CALLE GOYA – BARRIO DE SALAMANCA

Madrid (Barrio Salamanca)

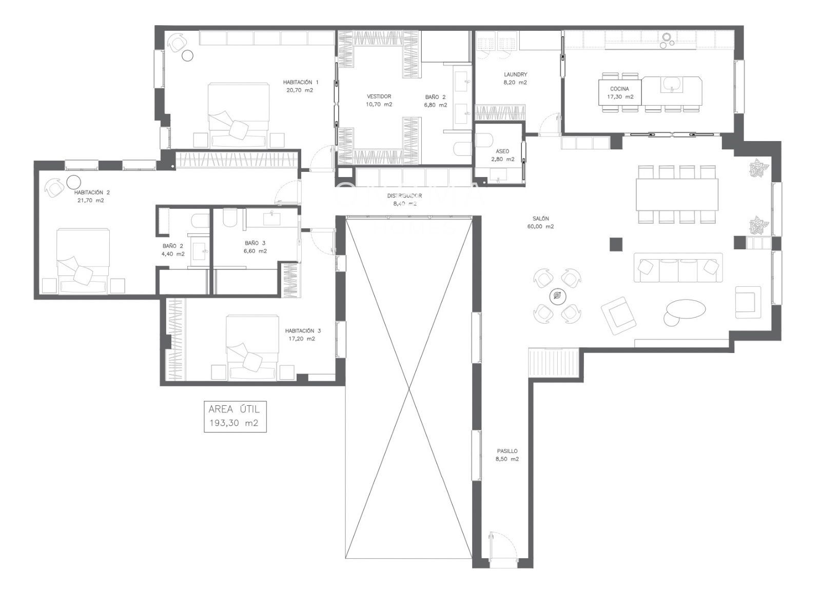
Ref. 1012 230 m2 3 4 3
venta: 3.050.000 

Onoma Homes presenta esta impresionante vivienda de 230 m² en la tercera planta de una finca de 1954 de gran calidad, con portero y portal clásico, ubicada en una de las calles más codiciadas del barrio de Salamanca.


La propiedad cuenta con tres dormitorios espaciosos, todos con baño en suite. La suite principal incluye un vestidor de gran tamaño, creando un espacio elegante y funcional pensado para el máximo confort.


La vivienda dispone de cocina independiente totalmente equipada, una zona de lavandería separada, y un amplio salón-comedor, diseñado para ofrecer luminosidad, amplitud y comodidad tanto en el día a día como en momentos de ocio y reuniones.


Se entrega llave en mano, totalmente amueblada y equipada, lista para entrar a vivir y disfrutar de una experiencia de lujo desde el primer momento. Los acabados de alta gama en madera y piedra natural aportan carácter y sofisticación a cada rincón del piso.


Gastos de comunidad: 203 €

IBI: 1.900 €


Una residencia que combina ubicación privilegiada, diseño cuidado y confort absoluto, ofreciendo una oportunidad única de vivir en el corazón del barrio de Salamanca.


¿Te imaginas residiendo aquí?

Contacte con nosotros para más información o para descubrir propiedades de similares características.

Índice de alquiler

Precio Venta 3.050.000 €
Precio/m² 13.261
Gastos de comunidad 203 €
I.B.I. 1.900 €
Construidos 230 m2
Dormitorios 3
Baños 4
Amueblado
Cocina Amueblada
Altura/Planta 3
Aire acondicionado
Adaptado
Calificación Energética En trámite
Luz
Agua
Conserje
Acceso discapacitados

Inmuebles similares:

 
Piso en venta en Madrid, con 304 m2, 4 habitaciones y 5 baños, Garaje, Trastero, Ascensor, Amueblado y Aire acondicionado.
3.500.000 €
 304 m2  4  4
 
Piso en venta en Madrid, con 278 m2, 3 habitaciones y 4 baños, Garaje, Trastero, Ascensor, Amueblado y Aire acondicionado.
3.000.000 €
 278 m2  3  4
Contacta con tu asesor
Drisana Gómez
Solicita información

Si deseas más información sobre esta propiedad, por favor, rellena el formulario: