EXCLUSIVA VIVIENDA REFORMADA EN CALLE MARTÍNEZ CAMPOS – ALMAGRO

Madrid (Chamberi)

Ref. 1015 218 m2 3 4 1 2
venta: 2.800.000 

Onoma Homes presenta esta segunda planta de lujo, completamente reformada por Barnes, expertos en residencias de alto nivel y diseño exclusivo, ubicada en una finca de gran calidad con portero, trastero y plaza de parking, en el prestigioso barrio de Chamberí – Almagro. La propiedad también cuenta con una terraza privada, ideal para disfrutar.


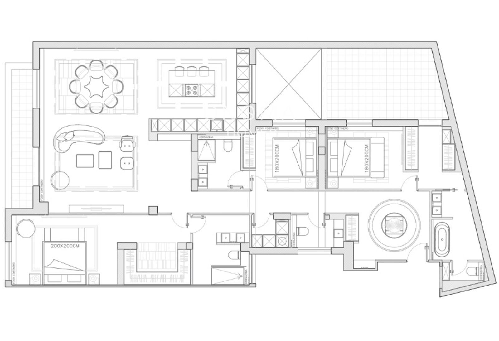
La vivienda ofrece tres dormitorios, todos con baño en suite, además de un aseo de cortesía. Dos de las habitaciones incluyen walk-in closets de gran tamaño, y una de ellas dispone de una terraza amplia, perfecta para relajarse con privacidad. La tercera habitación también cuenta con su baño en suite y acabados cuidadosamente seleccionados.


El salón-comedor es amplio y luminoso, con acceso directo a la terraza, proporcionando un espacio elegante y cómodo para la vida diaria y el ocio. La cocina independiente, de diseño moderno y funcional, cuenta con isla central, electrodomésticos de alta gama y materiales nobles como encimeras de piedra natural y muebles en madera maciza, convirtiéndola en el corazón del hogar.


La reforma realizada por Barnes incluye acabados de lujo, iluminación empotrada de diseño, suelos de madera natural, carpintería a medida y detalles de alta gama en baños y cocina, ofreciendo un equilibrio perfecto entre elegancia, confort y funcionalidad.


Una oportunidad única de vivir en un entorno exclusivo de Chamberí – Almagro, en una vivienda que combina espacios amplios, luz natural y detalles de lujo en cada estancia.


¿Te imaginas viviendo aquí?

Contacte con nosotros para más información o para descubrir propiedades excepcionales similares.

Índice de alquiler

Precio Venta 2.800.000 €
Precio/m² 12.844
Gastos de comunidad 502 €
I.B.I. 1.602 €
Año de construcción 1978
Construidos 218 m2
Dormitorios 3
Baños 4
Amueblado
Cocina Amueblada
Trastero
Garajes 1
Altura/Planta 2
Ascensor
Aire acondicionado
Piscina comunitaria
Calificación Energética En trámite
Luz
Agua

Inmuebles similares:

 
Piso en venta en Madrid, con 217 m2, 3 habitaciones y 4 baños, Ascensor, Amueblado y Aire acondicionado.
2.950.000 €
 217 m2  3  4
 
Piso en venta en Madrid, con 230 m2, 3 habitaciones y 4 baños, Amueblado y Aire acondicionado.
3.050.000 €
 230 m2  3  4
Contacta con tu asesor
Drisana Gómez
Solicita información

Si deseas más información sobre esta propiedad, por favor, rellena el formulario: